超聲相控陣-A/B試塊

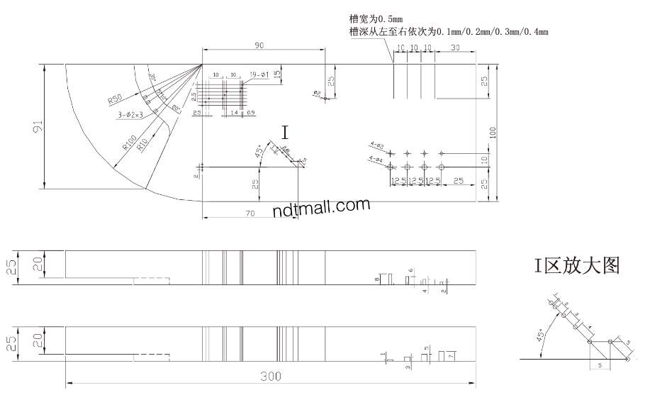
A 型試塊結構示意圖見圖 ,主要用于測試相控陣探頭扇形掃描橫向分辨力、縱向分辨力和短缺陷分辨力。進行測試時,在探頭與試塊表面之間涂敷合適的耦合劑,并施加一定的壓力確保良好耦合,調節設備進行測試。主要應用包括以下幾方面:
(a)扇掃成像橫向分辨力:橫向分辨力即角度分辨力,將探頭放置在試塊 A 中 A-1 區一系列通孔的下端面,作扇形掃查,確保 A-1 區中的人工缺陷都在顯示區域中。成像中所能分開的最小間距即為該工作狀態下的成像橫向分辨力。
(b)扇掃成像縱向分辨力:縱向分辨力即沿聲傳播方向的分辨力,將探頭放置在試塊 A 中 A-2 區一系列通孔的下端面,作扇形掃查,確保 A-2 區中的人工缺陷都在顯示區域中。成像中所能分開的最小間距即為該工作狀態下的成像縱向辨力。
(c)短缺陷分辨力:放置在試塊 A 中 A-3 區一系列通孔的下端面,進行掃查成像。圖像所能清晰顯示的最小長度的人工缺陷的長度即為該設備對短缺陷的分辨力。

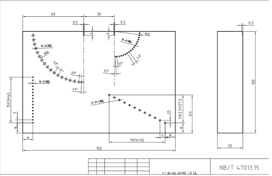
(a)成像橫向幾何尺寸測量誤差:將探頭放置在試塊 B 中 B-1 區一系列通孔的左端面及 B-2 區一系列通孔的下端面,調節設備實現線性掃查或扇形掃查得到清晰圖像。在圖像上,依次選擇不同孔的中心并進行橫向間距測量,讀取不同孔圖像之間的橫向距離測量值。用試塊上該兩孔之間的標稱值減去測量值,即為設備對該兩個孔橫向幾何尺寸測量的誤差。
(b)成像縱向幾何尺寸測量誤差:將探頭放置在試塊 B 中 B-1 區一系列通孔下端面,調節設備實現線性掃查或扇形掃查得到清晰圖像。在圖像上,依次選擇不同孔圖像的中心并進行縱向間距測量,讀取不同孔圖像之間的縱向距離測量值。用試塊上該兩孔之間的標稱值減去測量值,即為設備對該兩個孔縱向幾何尺寸測量的誤差。
(c)扇掃角度范圍測量誤差:將探頭放置在試塊 B 中 B-3 區一系列通孔的上端面。對于直探頭,推薦采用 3 個掃描角度范圍,該掃描角度范圍的選取以垂直于探頭陣元分布方向并通過探頭中心的線為 0°參考左右對稱,推薦選取的角度范圍如下:30°(±15°)、60°(±30°)、80°(±40°)。對于斜探頭,由于偏轉角度及掃描范圍差異較大,推薦根據客戶要求或根據儀器情況由實驗室指定角度范圍。設定不同的扇形掃查角度范圍,調節設備實現扇形掃查得到清晰的圖像。在圖像中數出缺陷圖像的數目,并根據試塊中人工缺陷的示意圖,計算出實際掃查角度。如果在同一個增益下,無法全部顯示掃查范圍內所有人工缺陷的圖像;應適當調節增益,使得在該圖像中盡可能同時顯示出該區域所有的人工缺陷。
(d)扇掃角度分辨力:將探頭放置在試塊 B 中 B-3 區一系列的上端面,調節設備實現扇形掃查。圖像中所能分開的最小角度間距即為該工作狀態下的扇掃角度分辨力。
(2)對比試塊:確定檢測靈敏度、評判缺陷大小、調整掃查速度;
在對比試塊上制造一系列特定的人工反射體,用來調整檢測靈敏度,制作 TCG 補償曲線。此外,還可以測試材料的聲速、衰減等。
(3)模擬缺陷試塊
用于進行檢測工藝驗證、確定掃查靈敏度和檢測人員考試等的試塊,試塊內部含有自然缺陷或者接近于自然缺陷的人工缺陷,缺陷類型和缺陷位置應具有代表性。
模擬試塊的要求、用途和設計與常規 A 超模擬試塊相同,材料與被檢測工件應相同或相近,制作時應保證材質均勻、無雜質、無影響用途的其它缺陷。可以人工制作,也可以采用以往檢測中所發現含自然缺陷的樣件。