GS-1/2/3/4/5/6試塊
- 品牌: 瑞祥牌
- 標準: NB/T47013承壓設備無損檢測
- 材質: 20#鋼
GS試塊是依據NB/T 47013-2023承壓設備無損檢測標準中承壓設備Ⅱ型焊接接頭超聲檢測要求而設計的試塊。相關信息如下:
適用范圍:
GS - 1:適用于管外徑32 - 48mm,曲率半徑16 - 24mm的承壓設備管子和壓力管道環向對接焊頭的檢測。
GS - 2:適用于管外徑48 - 72mm,曲率半徑24 - 35mm的承壓設備管子和壓力管道環向對接焊頭的檢測。
GS - 3:適用于管外徑72 - 110mm,曲率半徑35 - 54mm的承壓設備管子和壓力管道環向對接焊頭的檢測。
GS - 4:適用于管外徑110 - 159mm,曲率半徑54 - 80mm的承壓設備管子和壓力管道環向對接焊頭的檢測。
功能用途:
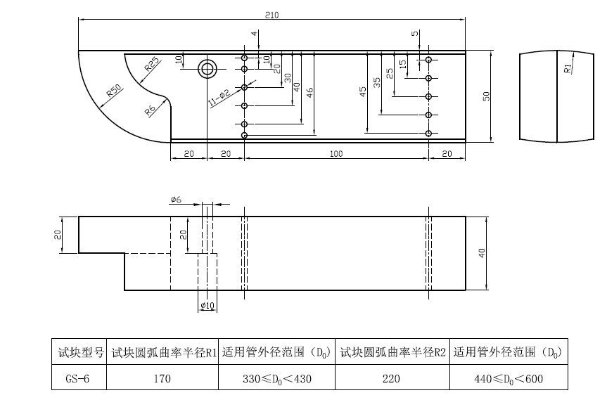
可用于測量探頭入射點及探頭零點。將選取楔塊弧度與試塊檢測面弧度相同的探頭置于試塊前端圓弧位置,向特定圓弧發射超聲波,前后移動探頭,直到圓弧面反射波達到最高點,此時可進行相關測量。
能測試斜探頭分辨力。將探頭對準試塊上的階梯孔,通過觀察檢測信號來評估斜探頭分辨不同反射體的能力。
可測試探頭折射角度。任意選取試塊上一深度的橫通孔,利用超聲波在試塊中的傳播特性和幾何關系,測量探頭的折射角度。
用于制作DAC曲線。通過測量多個不同深度的橫孔的反射波幅度,建立距離 - 波幅曲線,用于對實際檢測中缺陷的定量分析。
材質:一般選用電爐或平爐熔煉的碳素結構鋼,其成分符合GB/T 699的要求,晶粒度7 - 8級。這樣的材質具有良好的聲學性能和加工性能,能夠保證試塊在超聲檢測中的準確性和穩定性。
GS-1、GS-2、GS-3、GS-4試塊 依據NB/T47013-2015承壓設備無損檢測標準 承壓設備Ⅱ型焊接接頭超聲檢測要求而設計,適用于將斜探頭檢測工件厚度范圍為4mm~50mm的Ⅱ型焊接接頭。試塊適用范圍見下表:



測試方法:(1)將選取楔塊弧度與試塊檢測面弧度相同的探頭將探頭置于試塊前端圓弧位置,向R50mm的圓弧發射超聲波,前后移動探頭,直到R50mm圓弧面與R25圓弧面反射波達到最高點,此時可測量探頭入射點及探頭零點。
(2)將探頭對準φ10與φ6階梯孔可測試斜探頭分辨力。
(3)任意選取一深度的橫通孔可測試探頭折射角度。
(4)同時測量多個不同深度的橫孔可用于制作DAC曲線。