CSK-ⅠA試塊 無損檢測 探傷
- 品牌: 瑞祥牌(東岳牌)
- 標準: NB/T 47013-承壓設備無損檢測
- 尺寸: 300*100*25
- 材質: 45#鋼/P91/P92/不銹鋼
CSK-IA試塊是我國承壓設備無損檢測標準NB/T47013中規定的標準試塊,是在IIW試塊的基礎上改進而來的。其相關信息如下:
材料:通常采用45號鋼,毛坯為鍛打件,需經正火處理。材料的主要化學成分應符合GB699的規定,經正火處理后晶粒度應達到7級以上。使用5MHZ直探頭進行接觸法超聲波探傷時,不得出現大于對比試塊DB-PZ2-2平底孔回波幅度1/4的缺陷回波。
用途:
測定探頭參數:利用R50mm和R100mm弧測定聲速、探頭的入射點、前沿及探頭延遲;采用85mm、91mm、100mm三個不同深度的臺階底面測定直探頭的分辨力;利用40mm、44mm、50mm三個階梯孔測定斜探頭的分辨力;用50mm圓孔和1.5mm橫孔測試斜探頭K值;用50mm圓孔測試直探頭的盲區。
校驗探傷儀性能:利用25mm厚度測定探傷儀的水平線性、垂直線性和動態范圍;利用25mm厚度調整縱波探測范圍和掃描速度;利用R50mm和R100mm曲面調節橫波探測范圍和掃描速度;利用試塊直角棱邊測定斜探頭聲束軸線的偏離情況。
水平線性又稱時基線性,或掃描線性。是指輸入到超聲檢測儀中的不 同回波的時間間隔與超聲檢測儀顯示屏時基線上回波的間隔成正比關系的 程度。水平線性影響缺陷位置確定的準確度。水平線性的測試可利用任何 表面光滑、厚度適當,并具有兩個相互平行的大平面的試塊,用縱波直探 頭獲得多次回波,并將規定次數的兩個回波調整到與兩端的規定刻度線對 齊,之后,觀察其他的反射回波位置與水平刻度線相重合的情況。其測試 步驟如下:
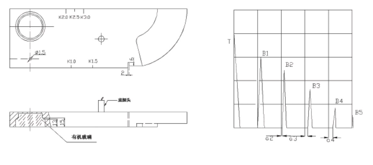
(1)將直探頭置于 CSK-IA 試塊上,對準 25mm 厚的大平底面, 如圖 a 所示
(2)調整微調、水平或脈沖移位等旋鈕,使示波屏上出現五次底波 B1 到 B5,且使 B1 對準 2.0,B5 對準 10.0,如圖 b 所示
(3)觀察和記錄 B2、B3、B4 與水平刻度值 4.0、6.0、8.0 的偏差 值 a2、a3、a4。
(4)計算水平誤差:公式

式中,amax——a2,a3,a4 中最大者 b——示波屏水平滿刻度值

在利用縱波探傷時,可以利用試塊的已知厚度來調整探測范圍和掃描 速度,此過程我往往和檢驗時基線性同步進行。當探測范圍在 250mm 以 內時,可將探頭置于 25mm 厚的大平底上,使四次底部回波位于刻度四, 十次底部回撥位于刻度十,則刻度十就代表實際探測聲程為 250mm。當探測聲程范圍大于 250mm 時,可將探頭置于如圖的 B 或 C 處,使各次底 波位于相應的刻度處,此時起始零點亦同時得到修正。

由于縱波的聲程 91mm 相當于橫波聲程 50mm,因此可以利用試塊 上 91mm 來調整橫波的檢測范圍和掃描速度。例如橫波 1:1,先用直探頭 對準 91 底面,是 B1、B2 分別對準 50、100,然后換上橫波探頭并對準 R100 圓弧面,找到最高回波,并調至 100 即可。
(1)抑制旋鈕調至“0”,探頭置于如圖所示位置,左右移動探頭, 使顯示屏上出現 85、91、100 三個反射回波 A、B、C 如圖所示,則波峰 和波谷的分貝差 20Lg(a/b) 表示分辨力。
(2)NB/T47013-2015 中規定,直探頭遠場分辨力大于等于 20dB。


(1)探頭置于如圖所示位置,對準 50mm、44mm、40mm 階梯孔, 使示波屏上出現三個反射波。
(2)平行移動探頭并調節儀器,使 50mm、44mm 回波等高,如圖所示, 其波峰和波谷分別為 h1、h2,其分辨力為
X = 20Lgh1/h2(dB)
NB/T47013-2015 中規定,斜探頭的遠場分辨力大于等于 12 分貝。

將探頭置于圖示位置,向 R100mm 的圓弧發射超聲波,前后移動探頭, 直到 R100mm 圓弧面反射波達到最高點,此時與 CSK-1A 試塊側面標 線中心點“0”相對應的探頭契塊那一點即為探頭入射點。

根據探頭折射角的大小,將探頭置于試塊的不同位置進行測量,如圖所示。波形圖同于入射點波形圖。
測量時,探頭應放正使波束中心線與試塊側面平行,前后移動探頭, 找到 50mm 孔或 1.5mm 孔的最高反射波。此時,聲束中心線必然與入射 點和圓心之間的連線相重合,即聲束中心線垂直于孔表面。這時,試塊上 與入射點相應的角度線所標的值即為該斜探頭的 K 值。


將探傷儀的抑制和補償旋鈕置于“0”或“關”用直探頭放置在圖中 A 或 B 位置。并保證探頭與試塊之間有良好的聲耦合。

調整衰減器使試塊底波高度為熒光屏的滿刻度,此時必須有 30 分貝的 衰減量。然后每衰減 2 分貝用百分率讀出反射波高度,直到 26 分貝,在 判斷 30 分貝時反射波是否存在,將結果記錄表中。評定垂直線性時,以反 射波高度的理想波高為基準,以測試值與基準值的最大正偏差(+d)及最 大負偏差(-d)之和來判定垂直線性。
D=[|+d|+|-d|]×%
盲區是指最小的探測距離,測試方法是:將直探頭置于探頭位置圖中 D、 E 位置,測量 50mm 圓孔反射波。從而可以估計出盲區小于等于 5mm 或 大于等于 10mm,或者介于兩者之間。
將直探頭置于探頭位置圖中 F 位置,將儀器個靈敏度旋鈕均置于最大, 測試試塊中有機玻璃塊反射波次數和最后一次反射波高度。以此來估計最 大穿透力,借以比較探傷儀器及探頭組合性能隨時間變化的情況。
根據 AVG 原理,在探頭探傷時可把 R100mm 圓弧面視為大平底反射, 以此來調整探測靈敏度。直探頭探傷時可把厚度為 25/100mm 的幾個側面 視為大平底處理,以此來調整靈敏度。另外,也可以根據探傷要求,儀測 量 1.5mm 橫通孔反射波來確定靈敏度。


在 CSK-IA 試塊上厚 25mm 的平面上,使聲束指向棱邊,對于 K 值小于等于 1 的探頭,聲束經底面反射指向上棱角;K 值大于 1 的聲束指 向下棱角,前后左右擺動探頭,使所測棱邊端角回波幅度最高,固定探頭 不動,然后用量角器或適當的方法測量斜探頭幾何中心聲束軸線與棱邊法 線的夾角(例如測量探頭斜面與試塊端面垂直線的夾角),即為聲束軸線 偏斜角。應當注意:斜探頭的聲束擴散角較大時,可能影響到最大回波的 探測,以致可能產生較大的測量誤差。

謝謝