ZL-I、II( a b c d) 縱波靈敏度試塊
- 標準: GB/T 11345—2013《焊縫無損檢測 超聲檢測 技術、檢測等級和評定》
國家標準GB/T 11345—2013《焊縫無損檢測 超聲檢測 技術、檢測等級和評定》、GB/T 29711—2013 《焊縫無損檢測 超聲檢測 焊縫中的顯示特征》、GB/T 29712—2013《焊縫無損檢測 超聲檢測 驗收等 級》于2013年9月18日頒布、2014年6月1日實施。該系列標準為推薦性標準,分別對應焊縫超聲檢測的技術方法 和檢測等級、顯示特征判定以及焊縫質量驗收三個方面,代替GB/T 11345—1989標準。標準中明確給出設定參 考靈敏度的要求,但沒有給出標準試塊圖紙,因此各行業需根據使用不同,依據標準設計了多種試塊,為規范 試塊設計,汲取各行業設計之優點最終設計出整套標準試塊。本套試塊為專利產品,本手冊僅供參考學習,請 勿用于任何商業活動。
依據標準內容要求試塊共分五大類,共計28塊。(φ3mm橫孔靈敏度試塊、縱波靈敏度試塊、橫波靈敏度 試塊、槽型基準靈敏度試塊、串列式試塊。)
縱波靈敏度試塊
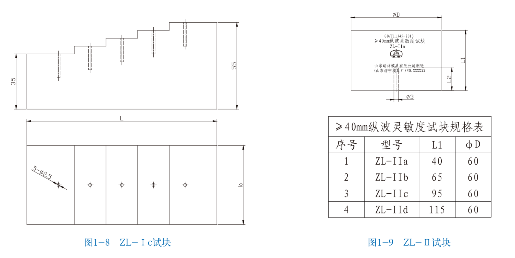
縱波靈敏度試塊依據標準中技術2要求而設計,該類試塊主要適用于標準技術2中縱波檢測以平底孔為基準反射體,制作縱波距離-增益-尺寸曲線(DGS)。試塊依據檢測范圍及平底孔直徑的不同共設計兩個系列七塊試塊,ZL-I系列為<40mm縱波靈敏度試塊,ZL-II系列為≥40mm縱波靈敏度試塊。縱波靈敏度試塊設計內容見下表。


